On-line monitoring jakosti vody na Bečvě

Po ekologické havárii na řece Bečvě VÚV TGM po dohodě s MŽP koncem ledna 2021 zahájil pilotní kontrolní monitoring vybraných chemických a biologických parametrů jakosti vody na vytipovaném úseku řeky. Cílem bylo zachytit možný negativní vliv zdrojů znečištění, situovaných v daném úseku toku a celý proces posléze zautomatizovat. To se povedlo 3. června 2022, kdy byl automatický monitoring využívající přístroj Daph Tox II oficiálně zahájen. Od roku 2024 je finanční pokrytí nákladů a činností, spojených s monitoringem řešeno na základě Smlouvy o horizontální spolupráci na zajištění provozu měřící stanice. Smluvními stranami jsou Ministerstvo životního prostředí ČR, Zlínský kraj, Město Valašské Meziříčí a VÚV TGM. K detekci možných příčin a odhadu šíření znečištění v případě zaznamenání významného snížení jakosti povrchových vod bude následně využit expertní systém NAVAROSO.

Průběžně doplňované výsledky měření jakosti vody jsou dostupné zde.

Kontinuální sledování havarijního znečištění DAPHTOX

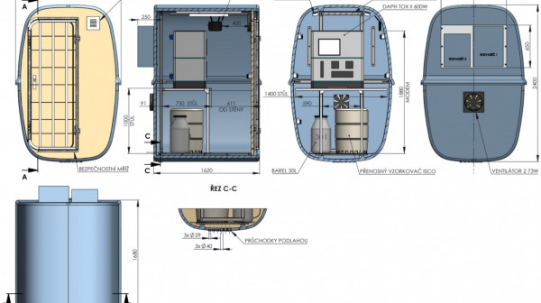
Kontinuální sledování možného havarijního znečištění na řece Bečvě, v lokalitě Lhotka na Bečvou, bylo ve zkušebním módu zahájeno ihned po dokončení výstavby a kolaudaci monitorovací stanice v druhé polovině roku 2022 (viz obrázky níže). V běžném, plném režimu pokračovalo od počátku roku 2023. Dané činnosti byly financovány VÚV TGM, od roku 2024 je finanční pokrytí nákladů a činností, spojených s monitoringem řešeno na základě Smlouvy o horizontální spolupráci na zajištění provozu měřící stanice.

Ke sledování je používán přístroj DaphTox II (viz obrázky níže).  V něm se pro vyhodnocování biologické jakosti vod sledují změny chování monitorovacích organismů, kterými jsou perloočka, konkrétně dafnie. Pohyb organismů v měřící komoře kontinuálně snímá kamera a změny v chování jsou průběžně vyhodnocovány integrovaným počítačem. Z řady parametrů, které zohledňují například průměrnou rychlost pohybu organismů, jejich polohu v komoře a také jejich případný úhyn, je stanoven takzvaný index toxicity na stupnici 0 až 10. Na základě jeho hodnoty je pak spouštěno varování či alarm. K zařízení se lze za pomocí specializovaného programu připojit on-line z kteréhokoliv počítače, který je vybaven příslušným softwarem. To umožňuje získávat odkudkoliv a kdykoliv aktuální informace o stavu biologické jakosti vod v monitorovaném profilu. Tento systém už je zaveden např. v Německu, kde monitoruje kvalitu vody přicházející z České republiky.

Expertní informační systém NAVAROSO

Systémem poskytuje křížově provázané údaje, potřebné pro rychlé získávání informací o možných příčinách zhoršení jakosti vod (viz obrázky výše), postupech k určení typu znečištění a odhadu jeho šíření ve vodoteči (viz obrázky níže). Tím se zrychluje detekce možného zdroje znečištění a zlepší prevence možného znečišťování přesnější a rychleji dostupnou informací o jeho potenciálních zdrojích v povodí. To přispívá k zefektivnění ochrany vod v oblasti mitigace negativních vlivů znečištění. Tento systém je prioritně určen pro složky, zasahující při výskytu havárie na vodách (IZS, ČIŽP, vodoprávní úřady a správci povodí).

Postup prací

VÚV TGM vstoupil v polovině března 2022 do poslední fáze přípravy nepřetržitého monitoringu jakosti vody na řece Bečvě pod Valašským Meziříčím v lokalitě Lhotka nad Bečvou. Byla zde zřízena monitorovací stanice, která bude využívat přístroj Daph Tox II, pracující s hrotnatkami (daphniemi) z řádu perlooček jako organismy citlivými na změny jakosti vody. Stavební povolení objektu VÚV TGM obdržel v červenci 2021, stavební práce probíhaly do ledna 2022, kolaudační souhlas byl vydán 7. března 2022. V mezidobí proběhlo jednání s dodavatelem elektrické energie o zahájení její dodávky. Následně byly prověřeny všechny funkce stanice (ventilace, vytápění, zabezpečení objektu, přenos informací), přivezen přístroj Daph Tox II a zahájen ověřovací provoz. Dne 3. června 2022 byla stanice oficiálně uvedena do provozu. O stanici se provozně stará pobočka VÚV TGM v Ostravě.

O výstavbě stanice pojednává reportáž pro Českou televizi od Petra Březiny z ostravské pobočky VÚV TGM, o zahájení provozu stanice následně informovaly Česká televizeTN.cz a ČTK.